Appartamenti quadrilocale in vendita via caduti di nassiriya 137, Matera

Basilicata Matera Rif. RNT-560
    via caduti di nassiriya 137
+

Nuova Costruzione Appartamento + giardino + Garage (Giada)

Prezzo
€ 530.000
Contratto
Vendita
Tipologia
Appartamenti
Destinazione
Residenziale
Regione
Basilicata
Provincia
Matera
Comune
Matera
Località
Matera
Superficie
310 m² Dettagli
Superficie Commerciale
143 m²
Locali
4
Camere
3
Bagni
2

L' agenzia Immobiliare Infinity di Matera propone in vendita una NUOVA COSTRUZIONE situata a Matera Nord, nel rinomato e tranquillo quartiere Giada.
La proposta comprende:
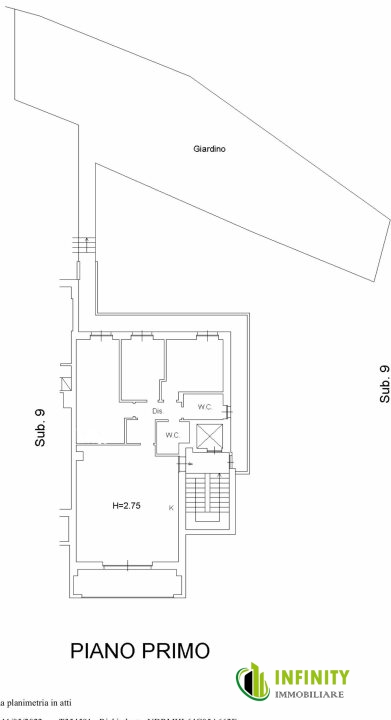
● Appartamento di circa 120 mq al primo piano con balcone panoramico e giardino privato di circa 170 mq;
● Garage di circa 40 mq (opzionale);

L' immobile sorge in un contesto signorile con sole cinque unità abitative, in una zona residenziale riservata, caratterizzata da ampie aree verdi, parchetto comunale, parcheggi e fermata autobus nelle vicinanze. Una soluzione ideale per chi desidera comfort, privacy, tranquillità ed eleganza, con una splendida vista panoramica.

L'immobile è così composto:
● Ingresso in ampia zona giorno
● Disimpegno
● Tre camere da letto
● Bagno padronale e bagno di servizio
● Zona lavanderia separata
● Balcone panoramico e balcone perimetrale sul retro
● Giardino privato terrazzato di circa 170 mq con predisposizione per acqua, energia elettrica e scarico fognario
● Predisposizione per stufa a pellet
● Predisposizione per impianto di raffrescamento canalizzato integrato nel controsoffitto in cartongesso
● Predisposizione per impianto fotovoltaico e solare termico

GARAGE - Piano Terra (circa 40mq) OPZIONALE

Caratteristiche Tecniche e di Sostenibilità
● Zona residenziale tranquilla e signorile
● Porta blindata
● Giardino di proprietà con predisposizioni di servizio (acqua, corrente e scarico
fognario)
● Caldaia a condensazione
● Impianto radiante a pavimento
● Predisposizione per impianto fotovoltaico e solare termico
● Isolamento termico e acustico
● Infissi in PVC con doppio vetro camera
● Predisposizione ascensore (uso comune)
● Vista panoramica
● Ampi giardini condominiali, tra cui uno di circa 300 mq, ideale per realizzare una piscina ad uso comune
● Pozzo per raccolta acqua piovana
● Giardino privato: 170 mq
● Ampio Garage
● Insonorizzazione

Una soluzione moderna, elegante e confortevole, perfetta per chi desidera vivere in un ambiente esclusivo e tranquillo, senza rinunciare ai migliori standard costruttivi e tecnologici.

Richiesta Euro 530.000.

Non perdere l'opportunità di possedere questo splendido immobile, contattaci oggi stesso per organizzare un incontro.

Per ulteriori informazioni chiamare il numero 3295821208 dal lunedi al venerdi, delle 9.30 alle 13 e dalle 16.30 alle 19.30

Classe Energetica: N.D.

Caratteristiche

Condizioni: Nuova Costruzione
Riscaldamento: Autonomo
Parcheggio: Garage
Giardino m2: 170 Privato
Piano: 1 - piani edificio: 2
Cucina: A vista
Arredato: Non Arredato
Balcone: Si
Anno di Costruzione: 2025
Condizionatore: Predisposizione impianto

Foto

Nuova Costruzione Appartamento + giardino + Garage (Giada) - 1
Nuova Costruzione Appartamento + giardino + Garage (Giada) - 2
Nuova Costruzione Appartamento + giardino + Garage (Giada) - 3
Nuova Costruzione Appartamento + giardino + Garage (Giada) - 4
Nuova Costruzione Appartamento + giardino + Garage (Giada) - 5
Nuova Costruzione Appartamento + giardino + Garage (Giada) - 6
Nuova Costruzione Appartamento + giardino + Garage (Giada) - 7
Nuova Costruzione Appartamento + giardino + Garage (Giada) - 8
Nuova Costruzione Appartamento + giardino + Garage (Giada) - 9
Nuova Costruzione Appartamento + giardino + Garage (Giada) - 10
Nuova Costruzione Appartamento + giardino + Garage (Giada) - 11
Nuova Costruzione Appartamento + giardino + Garage (Giada) - 12
Nuova Costruzione Appartamento + giardino + Garage (Giada) - 13
Nuova Costruzione Appartamento + giardino + Garage (Giada) - 14
Nuova Costruzione Appartamento + giardino + Garage (Giada) - 15
Nuova Costruzione Appartamento + giardino + Garage (Giada) - 16
Nuova Costruzione Appartamento + giardino + Garage (Giada) - 17

Planimetrie

Nuova Costruzione Appartamento + giardino + Garage (Giada) - 1

Mappa